Titre de la diapositive
1/9 Mobilier Caserne de Reuilly | Chambre étudiante
Bouton
Bureau | Mobilier Caserne de Reuilly
2/9 Mobilier Caserne de Reuilly | Bureau chambre étudiante
Bouton
Titre de la diapositive
3/9 Mobilier Caserne de Reuilly | Lit chambre étudiante
Bouton
Lit | Mobilier Caserne de Reuilly
4/9 Mobilier Caserne de Reuilly | Lit chambre étudiante
Bouton
Titre de la diapositive
5/9 Mobilier Caserne de Reuilly | Colocation
Bouton
Titre de la diapositive
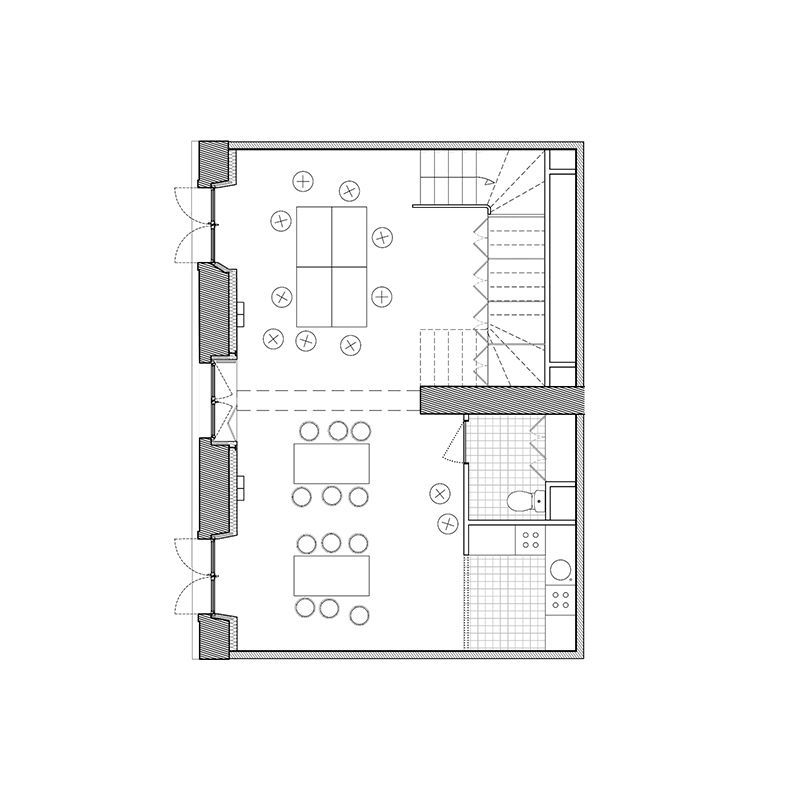
6/9 Mobilier Caserne de Reuilly | Espace commun
BoutonRéemploi | Mobilier Caserne de Reuilly
7/9 Mobilier Caserne de Reuilly | Réemploi - panneaux “trespa” en bakélisé stratifié
Bouton
Tabouret espace commun | Mobilier Caserne de Reuilly
8/9 Mobilier Caserne de Reuilly | Tabouret espace commun - réemploi panneaux "trespa"
Bouton
Titre de la diapositive
9/9 Mobilier Caserne de Reuilly | Espace commun
Bouton

| Axonométrie chambre étudiante

| Réemploi - table espace commun

| Réemploi - tabouret espace commun

| Plan espace commun
Conception du mobilier d'une résidence étudiante avec une démarche de réemploi
Le mobilier de la résidence étudiante de la Caserne de Reuilly a été développé sur mesure pour le CROUS, afin de s'adapter au programme et à l'architecture des lieux. Pour les chambres, ce sont des éléments de mobilier en epicea aux teintes claires qui ont été pensés sur-mesure et en lien avec les matériaux de la pièce. Pour les espaces communs, le mobilier a été pensé à partir d'un matériau réemployé de la Caserne : des panneaux “trespa” en bakélisé stratifié issus de sanitaires.
LIEU : Reuilly-Diderot, Paris 12e, France
PROGRAMME : Mobilier pour 140 chambres étudiantes et 2 espaces communs
MAITRISE D’OUVRAGE : CROUS de Paris
MAITRISE D’OEUVRE : CSA
COUT : 160 000€ HT
STATUT : LIvré en septembre 2019
REEMPLOI : Utilisation de panneaux HPL issu de blocs sanitaires pour la réalisation de tables hautes et tabourets des espaces communs
PHOTOGRAPHIES : Sarah Cantaloube (1-6, 9)


