
Titre de la diapositive
1/8 Restructuration/surélévation | Perspective façade active
Bouton
2/8 Immeuble Langevin | Existant
Bouton
Titre de la diapositive
3/8 Restructuration/surélévation | Perspective frontale façade active
Bouton
Titre de la diapositive
4/8 Restructuration/surélévation | Perspective frontale façade paysagère
Bouton
Titre de la diapositive
5/8 Restructuration/surélévation | Maquette générale
Bouton
Titre de la diapositive
6/8 Restructuration | Maquette logement typologie T3 - façade active
Bouton
Titre de la diapositive
7/8 Restructuration | Maquette logement typologie T3
Bouton
Titre de la diapositive
8/8 Restructuration | Maquette logement typologie T1
Bouton

| Diagnostic structure/ventilation/distribution - plan étage courant

| Diagnostic habité - croquis des logements

| Diagnostic habité - logement typologie T4

| Diagnostic habité - logement typologie T3

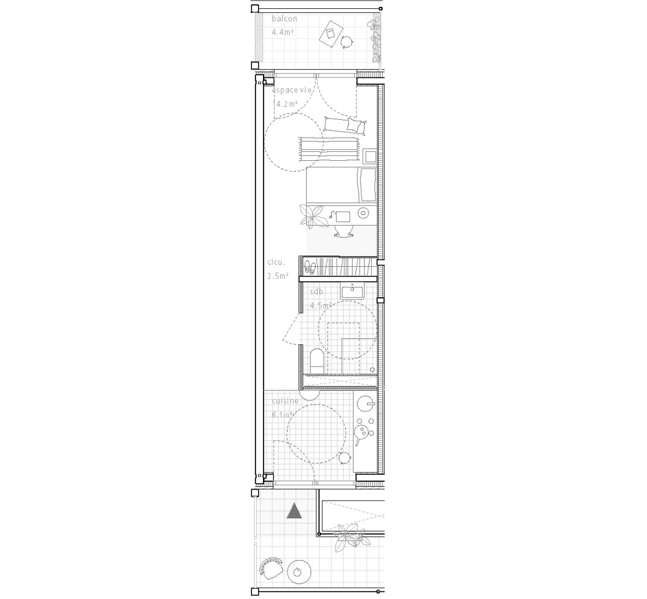
| Plan logement - typologie T1

| Projet - plan logement - typologie T3

| Axonométrie générale
Restructuration d'une barre d'immeuble issue d'un grand ensemble
L'immeuble Langevin offre une trame structurelle rationnelle à habiter à l'aune des enjeux contemporains (évolution démographique, changement climatique). La réponse à ce besoin de petites typologies favorisant la ventilation naturelle est un exosquelette se développant sur les façades est et ouest. A l'est, la façade est active ; une coursive extérieure augmentée permet la desserte de logements traversant allant du T1 au T3. A l'ouest, la façade est paysagère ; des balcons offrent un espace extérieur privatif à chaque logement.
LIEU : Rue Paul Langevin, Caen, France
CADRE : Consultation internationale Quartiers de Demain
PROGRAMME : Restructuration de l'immeuble Langevin, de son offre de logements, de son socle, et aménagement des espaces attenants
MAITRISE D’OUVRAGE : Caen-la-Mer Habitat
MAITRISE D'OEUVRE : LIN (architecte mandataire) + CSA (architecte co-traitant) + Adélaïde + BETEM + ANM ingénierie + HBLA + Maximum + AIDA
SURFACE SDP : 7 800 m²
COÛT :
STATUT : Dialogue compétitif cloturé en octobre 2025 - classé deuxième
MISSION : Mission complète
CONCERTATION : Création et animation d'ateliers avec les habitants du quartier
PERSPECTIVES : Onirism (1, 3, 4)
MAQUETTE : Atelier Pierre-Loup Boisseau (5)

